We Purchase, Trade, Consult & Market Residential & Commercial Real Estate

  • About
  • Contact
  • Careers
  • 337-984-4345
Guidry and Company Real EstateGuidry and Company Real EstateGuidry and Company Real EstateGuidry and Company Real Estate
  • 337-984-4345
  • Home
  • Buyers
    • Looking to Buy?
    • Featured Listings
    • Homes for Sale
    • COMMERCIAL LISTINGS: Business Opportunity, Industrial, Office, Restaurant/Lounge, Shopping Center, Hotel/Motel, Medical/Dental or Retail
    • LAND LISTINGS: Commercial, Industrial, Residential, Farm or Timberland
    • Buyers Guidebook
    • Choose Your Realtor
    • Why Choose Us
  • Sellers
    • Why Choose Us
  • Services
    • Consultation Services
    • Inherited Land
    • Professional Development
  • Who’s Your REALTOR®?
  • Blog
  • Reviews

Agent on Call

Catrice Ambrose, REALTOR® Sales Associate
337-446-6053


$429,000
TBD CRYER RD
Denham Springs, LA 70706
MLS# BR2025013028



Photo 1
  1 / 2  
Photo 1 Photo 2

Property Description
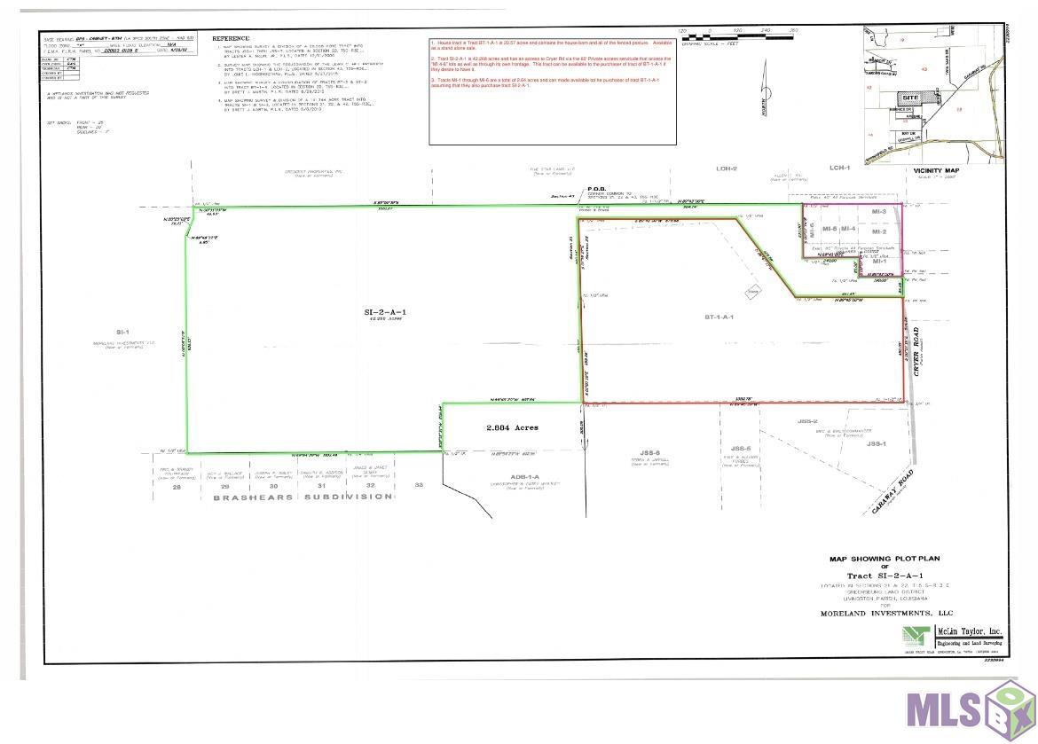
Beautiful 42 acre wooded tract. Perfect to build your country estate. Flood zone X.

Details
Listing Info
Document Modified: 2025-07-11 21:37:28.064044
Status: Active
Listing Date: 2025-07-11
Listing Price: 429000
Current Price: $429,000
Modification Timestamp: 2026-02-13T14:31:26Z
Photo Modified: 2026-02-13T13:43:29Z
Location, Tax & Legal Info
School District: Livingston Parish
Legal Desc: Tract S1-2-A-1 (42.268 acres) SEC21 & 22-5-3
Location
Rural: 1
General Property Description
Lot Dimensions: Irregular
Mobile Allowed: Yes
Wooded %: 95
Cleared %: 5
Divisible: Yes
Mineral Rights: Negotiable
Mineral Rights Owned %: 100
Acreage Range: 30 - 49.99
Acres: 42.2
Remarks & Misc
Remarks: Beautiful 42 acre wooded tract. Perfect to build your country estate. Flood zone X.
Office/Member/Contract Info
List AOR: GBRAR
Land Type
Residential: 1
Price Includes
Land: 1
Potential Use
Single Family: 1
Road Frontage
Paved: 1
Improvements
None: 1
Buildings
None: 1
Farm Equipment
None: 1
Utilities
Electricity Available: 1
Natural Gas Available: 1
Restrictions
None: 1
Financing
Cash: 1
Conventional: 1
Originating Details
Originating System ID: ROAMP
Originating System Key: 2025013028
Originating System Listing ID: 2025013028
Originating System Name: ROAM Paragon
Location Tax Legal Info
Street Number: TBD
Street Name: CRYER RD
Parish: Livingston
State: LA
Zip Code: 70706
Subdivision: Rural Tract (NO Subd)
Area: LIV MLS Area 81
Tax Assessment Number: 0475772
Zone: R-2
Directions: From I-12 take exit 15. Go north approximately 8 miles. Turn left onto LA-1019 continue 2.2 miles, then turn right onto Caraway Rd continue .2 miles, slight right to stay on Caraway for .4 miles. Turn left onto Cryer Rd go 500 feet.
Property Features
Land Type: Residential
Price Includes: Land
Potential Use: Single Family
Road Frontage: Paved
Location: Rural
Improvements: None
Buildings: None
Farm Equipment: None
Utilities: Electricity Available; Natural Gas Available
Restrictions: None
Financing: Cash; Conventional

IDX
Listing Office: Lockhart Real Estate Collective

Last Updated: February - 13 - 2026

The data relating to real estate for sale or lease on this website comes in part from the IDX program of the REALTOR® Association of Acadiana MLS. The IDX information is provided exclusively for consumers’ personal, non-commericial use and may not be used for any purpose other than to identify prospective properties consumers may be interested in purchasing. Data is deemed reliable but is not guaranteed accurate by the MLS.


Search powered by FBS Products

Find Us

Get Directions
 

1232-A Camellia Blvd.
Lafayette, LA 70508
P: 337-984-4345

 

AGENT ON CALL | 337-446-6053
 

 

CALL US: 337-984-4345

 

GUIDRY & CO. REAL ESTATE, Lafayette, LA. All offices are independently owned and operated. The data relating to real estate for sale on this web site comes in part from the IDX Program of the Realtor® Association of Acadiana; MLS Real Estate listings held by brokerage firms other than GUIDRY & CO. REAL ESTATE are marked with the MLS approved icon for IDX. “Information Deemed Reliable But Not Guaranteed”. Copyright 2016 REALTOR® Association of Acadiana, All rights reserved.

Licensed & Regulated in the jurisdiction of the Louisiana Real Estate Commission, Members of the National Association of Realtors®, Louisiana Realtors®, Realtor® Association of Acadiana, Multiple Listing Service (MLS), Louisiana Commercial (www.lacdb.com), The Realtor® Commercial Alliance, Equal Housing Opportunity.

  • Home
  • 337-984-4345
  • Buyers
    • Looking to Buy?
    • Featured Listings
    • Homes for Sale
    • COMMERCIAL LISTINGS: Business Opportunity, Industrial, Office, Restaurant/Lounge, Shopping Center, Hotel/Motel, Medical/Dental or Retail
    • LAND LISTINGS: Commercial, Industrial, Residential, Farm or Timberland
    • Buyers Guidebook
    • Choose Your Realtor
    • Why Choose Us
  • Sellers
    • Why Choose Us
  • Services
    • Consultation Services
    • Looking to Buy?
    • Inherited Real Estate?
    • Choose Your REALTOR®
    • Professional Development
  • Blog
  • Who’s Your REALTOR®?
  • Careers
  • About Guidry & Co. Real Estate
  • Contact Us
  • Reviews
Guidry and Company Real Estate
Thank you for visiting Guidry & Co. Real Estate, for more information please register here:

"*" indicates required fields

This field is for validation purposes and should be left unchanged.
Name*

 

Return To Homepage