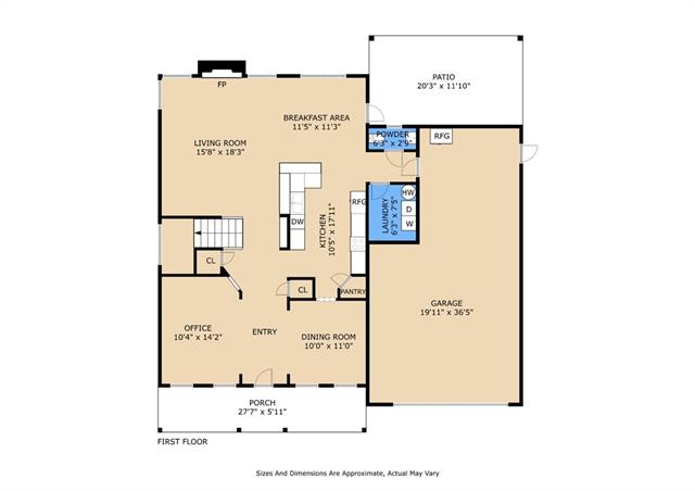
| Room Name | Length | Width | Remarks |
| Kitchen | 10.50 | 17.11 | Kitchen |
| Bedroom 1 | 10.80 | 12.00 | Bedroom |
| Dining Room | 10.00 | 11.00 | Dining Room |
| Bedroom 2 | 10.50 | 13.50 | Bedroom |
| Living Room | 15.80 | 18.30 | Living Room |
| Bathroom 1 | 6.30 | 2.90 | Half Bath |
| Primary Bedroom | 15.90 | 14.10 | Primary Bedroom |
| Primary Bathroom | 11.10 | 8.30 | Primary Bathroom |
| Bedroom 3 | 10.50 | 11.40 | Bedroom |
| Laundry | 6.30 | 7.50 | Laundry |
| Office | 10.40 | 14.20 | Office |
| Bedroom 4 | 19.20 | 14.50 | Bedroom |
| Bathroom 2 | 8.60 | 5.30 | Bathroom |
Tallow Creek PD |
WOR |
Last Updated: March - 31 - 2026
The data relating to real estate for sale or lease on this website comes in part from the IDX program of the REALTOR® Association of Acadiana MLS. The IDX information is provided exclusively for consumers’ personal, non-commericial use and may not be used for any purpose other than to identify prospective properties consumers may be interested in purchasing. Data is deemed reliable but is not guaranteed accurate by the MLS.








GUIDRY & CO. REAL ESTATE, Lafayette, LA. All offices are independently owned and operated. The data relating to real estate for sale on this web site comes in part from the IDX Program of the Realtor® Association of Acadiana; MLS Real Estate listings held by brokerage firms other than GUIDRY & CO. REAL ESTATE are marked with the MLS approved icon for
IDX
. “Information Deemed Reliable But Not Guaranteed”. Copyright 2016 REALTOR® Association of Acadiana, All rights reserved.
Licensed & Regulated in the jurisdiction of the Louisiana Real Estate Commission, Members of the National Association of Realtors®, Louisiana Realtors®, Realtor® Association of Acadiana, Multiple Listing Service (MLS), Louisiana Commercial (www.lacdb.com), The Realtor® Commercial Alliance, Equal Housing Opportunity.